设计兵团展览设计论坛

QQ登录

只需一步,快速开始

楼主: 菡萏

[商场专卖] 透过空间 / 炫耀灵感 二

[复制链接]
 楼主| 发表于 2006-6-27 16:10:07 | 显示全部楼层

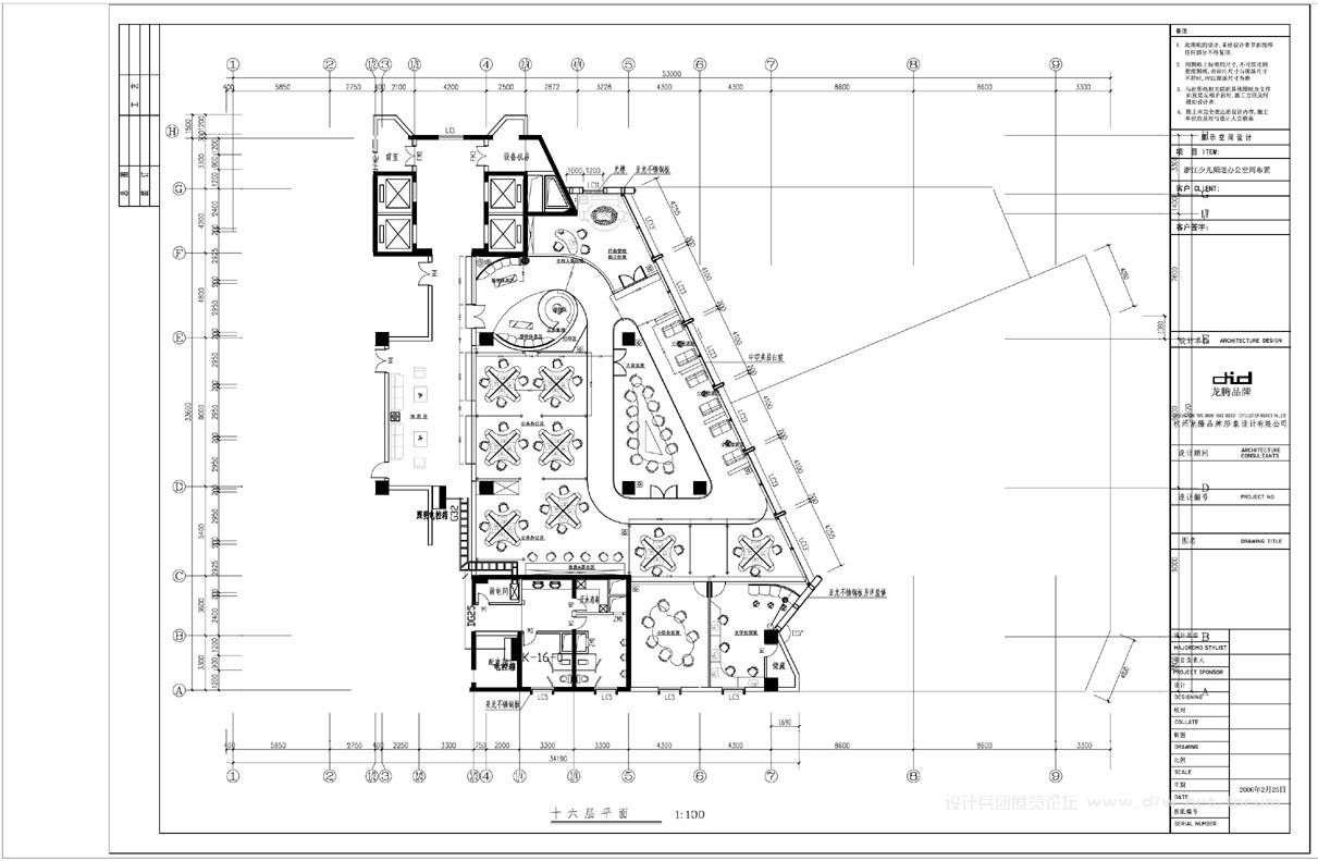
少儿频道

办公环境设计定位
         
       这是个主题性设计,设计师依着“让成长更快乐,让成长更精彩!”而出发。
靠文字,图形,大片明快的色彩等在其特异结构的表层活动,将整个办公空间设为
一个灵动的,没有终点具有很强的发展空间 ,让品牌的寓意更加明朗。
       浙江少儿频道是一个专门为广大青少年服务的专业电视频道,他是活泼具有
个性的商业活动,因此设计师在平面布局上将各个办公活动空间安排的更舒适流畅
视线更开阔 ...
       门厅落差弧型的形象墙,色彩的明快和谐,大块面落地玻璃,形似流动的空
间结构,是跳跃和精彩的,在视觉上极美的传达着浙江少儿频道的不断发展提升,
节目收视率不断攀升,节目与客户价值有续的递进着...
       小型洽谈区在原来位置上,只是采用半透明的中性色彩底的隔断设置将私密
的办公谈话多了份轻松惬意的氛围...
       会议室大块落地玻璃与明快的色彩隔断将成为少儿频道全体员工最活跃,
最精彩节目的创意中心,也巧妙的将原建筑结构中的立柱做了利用...
       公共办公空间的组员式排布,沿着“Z”型通道,将有限的空间做到了最合理
的利用,更增强了办公空间的开阔视线和沟通的便捷性...

[ 本帖最后由 菡萏 于 2006-6-27 16:12 编辑 ]
浙江少儿频道前厅平面.jpg
浙江少儿频道前厅.jpg
 楼主| 发表于 2006-6-27 16:16:06 | 显示全部楼层
没什么好说的,简单省钱,白忙活~到头来居然是.....嘿嘿,哎!

连接,透过空间 / 炫耀灵感

http://www.expo8.net/forum/viewthread.php?tid=5633&extra=&page=1

[ 本帖最后由 菡萏 于 2006-6-27 16:44 编辑 ]
 楼主| 发表于 2006-6-27 16:21:11 | 显示全部楼层

想要些新的能说服客户的,

南京店~为此平生第一次去南京,游南京,相伴在南京......

[ 本帖最后由 菡萏 于 2006-6-27 16:26 编辑 ]
新光-确定.JPG
新光-中国.jpg
发表于 2006-6-27 16:30:04 | 显示全部楼层
崇拜葱白崇拜,只有崇拜,除了少儿那套,加精吧,太经典了
不得不顶
发表于 2006-6-27 16:33:48 | 显示全部楼层
henxx
 楼主| 发表于 2006-6-27 16:53:07 | 显示全部楼层
自己顶~
发表于 2006-6-27 18:45:15 | 显示全部楼层
做的不错,说的更好!
发表于 2006-6-27 20:00:10 | 显示全部楼层
语言编织能力很强,做设计应该是这个样子,只要表达的清晰,完全可以不做图。
您需要登录后才可以回帖 登录 | 注册

本版积分规则

关闭

设计兵团推荐上一条 /1 下一条

快速回复 返回顶部 返回列表