设计兵团展览设计论坛

QQ登录

只需一步,快速开始

查看: 4463|回复: 22

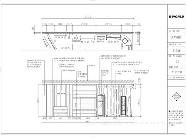
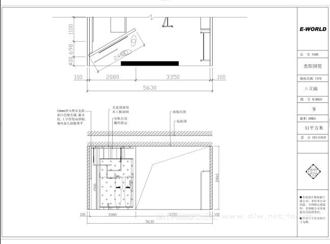
[中标] 施工图是这样画的,大家看过来~~~2~3页有新图

[复制链接]
发表于 2009-3-17 15:09:56 | 显示全部楼层 |阅读模式
施工图是这样画的,大家看过来~~~2~3页有新图

[ 本帖最后由 一中日月 于 2009-3-17 15:28 编辑 ]
1.jpg
2.jpg
3.jpg
11.jpg
22.jpg
33.jpg
44.jpg
55.jpg
66.jpg
77.jpg
88.jpg
99.jpg
1010.jpg
111.jpg
222.jpg
333.jpg
444.jpg
A.jpg
B.jpg
C.jpg
d.jpg
e.jpg
f.jpg
 楼主| 发表于 2009-3-17 15:31:22 | 显示全部楼层
怎么没人顶的,,,我吐,下次不传了,一点意思都没有~~~
发表于 2009-3-17 15:41:27 | 显示全部楼层
顶!这样的好帖一定要顶!:lol
发表于 2009-3-17 15:45:17 | 显示全部楼层
很正规的施工图啊,好像楼主去年发过了?
发表于 2009-3-18 09:12:17 | 显示全部楼层
我都看了几十遍了。。。。。。。。。。。。。:L ,
能布能不发了?
发表于 2009-3-18 09:18:46 | 显示全部楼层
妈呀这么麻烦
发表于 2009-3-18 09:19:23 | 显示全部楼层
提示: 作者被禁止或删除 内容自动屏蔽
发表于 2009-3-18 09:25:48 | 显示全部楼层
楼主好像对自己做的图很自豪啊,效果图真的是没法说了,你是专业做施工图的吗
您需要登录后才可以回帖 登录 | 注册

本版积分规则

关闭

设计兵团推荐上一条 /1 下一条

快速回复 返回顶部 返回列表