设计兵团展览设计论坛

QQ登录

只需一步,快速开始

楼主: joe_sun

一套我做了13遍修改的图!做了13张施工图!中了我却倒了!10万3的合同!

[复制链接]
发表于 2005-9-5 14:48:10 | 显示全部楼层
现场比效果图要漂亮好多啊,不过,36平的10万,真是有钱啊,还不讲价,你们的业务真是厉害!
发表于 2005-9-5 14:53:44 | 显示全部楼层
给你看看我们公司做的36平,3万还嫌贵呢,真是没办法!
4.jpg
发表于 2005-9-5 15:30:04 | 显示全部楼层
做的很不错  中了 也值了 但也要注意身体哦
发表于 2005-9-12 17:25:33 | 显示全部楼层
佩服,我觉得你用光在效果图上还可以再考究些,但现场的氛围真的不错
发表于 2005-9-16 09:46:09 | 显示全部楼层
我急需向你学习呀,我施工图和电路图画的不好,能不能多传上几张,让我看个够~!嘿嘿~~
发表于 2005-9-16 11:07:37 | 显示全部楼层
我看了你的施工图都是3D里面渲染出来然后表尺寸的,朋友比起我们来你要比我省力多了,我们的施工图都是要求用CAD画的包括平面图,然而图纸也要比你画的详细许多,我们一般出一套施工图都是几十张的,要求非常详细,有的还是用CAD出的彩图更麻烦,有机会让你们看看
发表于 2005-9-16 11:36:13 | 显示全部楼层
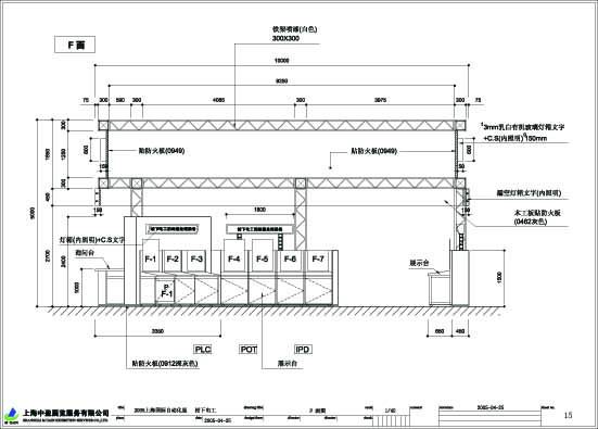
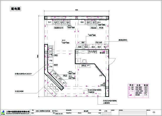
这些只是这个展位的一部分图纸,实在太多了,真是要画死我们啊
效果图-01.jpg
平面图-08 拷贝.jpg
配电图-09 拷贝.jpg
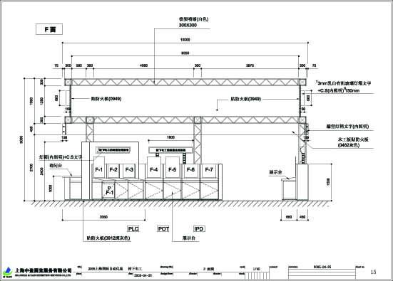
F-15 拷贝.jpg

A-10.pdf.jpg

29 Bytes, 下载次数: 4, 下载积分: 威望 -3 , 兵团币 -3

B-11.pdf.jpg

26 Bytes, 下载次数: 2, 下载积分: 威望 -3 , 兵团币 -3

C-12.pdf.jpg

27 Bytes, 下载次数: 2, 下载积分: 威望 -3 , 兵团币 -3

E-14(1).pdf.jpg

27 Bytes, 下载次数: 2, 下载积分: 威望 -3 , 兵团币 -3

E-14(1).pdf.jpg

27 Bytes, 下载次数: 8, 下载积分: 威望 -3 , 兵团币 -3

发表于 2005-9-16 11:45:00 | 显示全部楼层
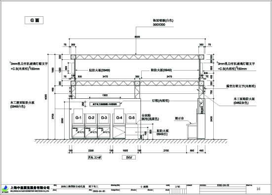
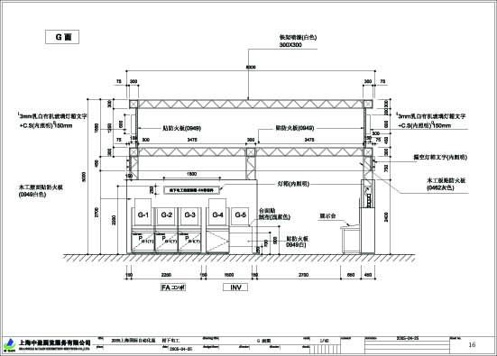
这些只是展位的一部分
F-15 拷贝.jpg
G-16 拷贝.jpg
G-16 拷贝.jpg
H-17 拷贝.jpg
I-18 拷贝.jpg
J-19 拷贝.jpg
您需要登录后才可以回帖 登录 | 注册

本版积分规则

关闭

设计兵团推荐上一条 /1 下一条

快速回复 返回顶部 返回列表